Casa semindipendente in vendita

Pavullo Nel Frignano, Via Campagna
€ 115.000
5 locali 5 locali
200 Mq 200 Mq
2 bagni 2 bagni

Casa semindipendente in vendita

Pavullo Nel Frignano, Via Campagna

Descrizione annuncio

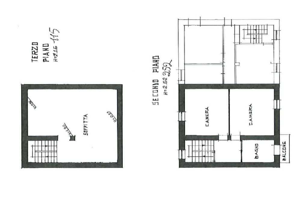
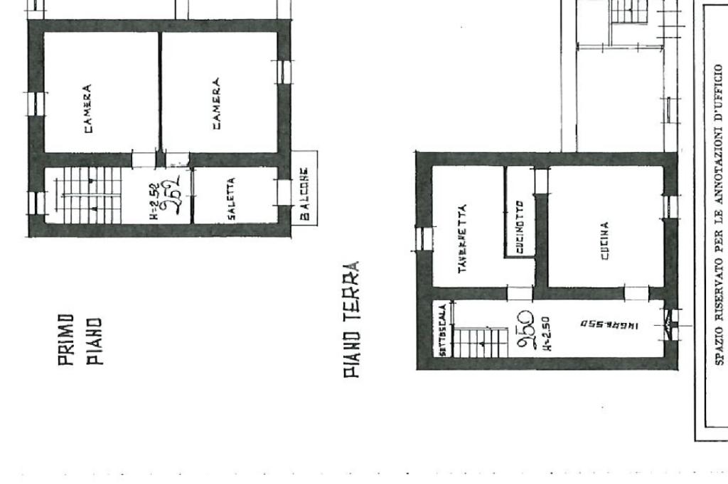
CAMPIANO- In un piccolo borghetto, proponiamo in vendita una porzione di casa da terra a cielo e servizi, con annesso un piccolo appezzamento di terreno di proprietà esclusiva.

L'immobile è così composto:

PIANO TERRA: troviamo l'ingresso che porta sul soggiorno ampio con camino, la sala da pranzo e ripostiglio;

PRIMO PIANO: troviamo il primo bagno con portafinestra che conduce al primo balcone e due camere da letto entrambe matrimoniali;

SECONDO PIANO: troviamo il secondo bagno anch'esso dotato di portafinestra che conduce al secondo balcone e altre due camere da letto matrimoniali.

Completano la soluzione una soffitta al quarto piano allo stato grezzo, e con la possibilità di due posti auto di proprietà.

Per informazioni dirette chiamate oppure scriveteci anche Whatsapp al 3351529270.

Mostra tutto

Nelle vicinanze

Trasporto pubblico Trasporto pubblico
Vaglio
Vaglio
2,0 Km
Ricariche auto elettriche Ricariche auto elettriche
Duferco Ospedale Pavullo Nel Frignano
1,3 Km
Scuole Scuole
Scuole
1,2 Km
Farmacia Farmacia
Farmacia Beckmann
1,3 Km
Parafarmacia Conad
1,5 Km
Ospedali Ospedali
Ospedale di Pavullo
1,3 Km
Supermercati Supermercati
Conad
1,5 Km
CONAD
1,8 Km
Famila ipermercato
2,9 Km
Negozi Negozi
Forno Tazzioli
1,4 Km
Ristoranti Ristoranti
Agriturismo Campiano
1,0 Km
Agriturismo Viecave
1,2 Km
Ristorante Antica Fagiola
1,5 Km
La Botte
1,5 Km
La locanda di Pavullo
1,7 Km
Mostra tutto

Caratteristiche

Rif.:
61168446
Piano:
Basso di 3
Totale piani:
3
Posti auto:
2
Balconi:
2
Camere da letto:
4
Mostra tutto
Prezzo Prezzo
€ 115.000
Rata mutuo Rata mutuo
€ 542 / mese
Spese annue Spese annue
€ 0
Proponi il tuo prezzoProponi il tuo prezzo

Classe Energetica

G
G
G
G
G
G
G
G
G
Anno di costruzione:
1960
Riscaldamento:
Autonomo
Tipo impianto:
A radiatori
Tipo alimentazione:
Metano

Ti interessa visionare l'immobile?

Fissa un appuntamento  Fissa un appuntamento

Richiedi informazioni

Clicca su Leggi per aprire l'informativa
* Questi campi sono obbligatori

Calcola il tuo mutuo

Semplice e senza impegno
Anticipo

( % )
Mutuo

( % )

pochi semplici passi

inserisci i tuoi dati
Questionario completato
Grazie per aver richiesto un appuntamento senza impegno con un nostro Consulente del Credito e Assicurativo.

Hai inserito correttamente tutti i dati necessari e a breve riceverai una e-mail con un link da convalidare per inviare i tuoi dati.
Affiliato
Studio Pfp Srl
Largo Ghibellini, 16 41026 Pavullo Nel Frignano (MO)
Largo Ghibellini, 16 41026 Pavullo Nel Frignano (MO)
Zona: Pavullo nel Frignano e frazioni-Serramazzoni-San Dalmazio-Riccò
Mostra su mappa
Orari: dal Lunedì al Venerdì 9.00-13.00/15.00-20.00 Sabato 9.00-13.00
Affiliato
Studio Pfp Srl
Largo Ghibellini, 16 41026 Pavullo Nel Frignano (MO)

2026 Tecnocasa Franchising S.p.A. - P. IVA 08365160152 - Via Monte Bianco 60/A 20089 Rozzano (MI). Ogni agenzia ha un proprio titolare ed è autonoma. Privacy policy | Policy utilizzo | Cookie policy