Casa indipendente in vendita

Pavullo Nel Frignano, Via Po
€ 325.000
Prezzo aggiornato
4 locali 4 locali
195 Mq 195 Mq
3 bagni 3 bagni

Casa indipendente in vendita

Pavullo Nel Frignano, Via Po

Descrizione annuncio

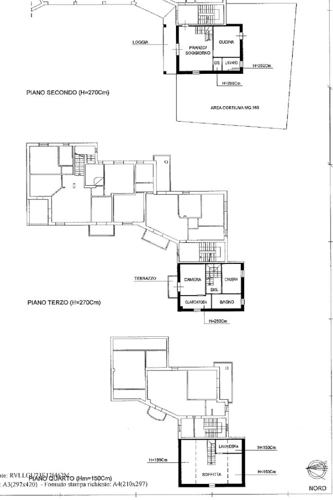
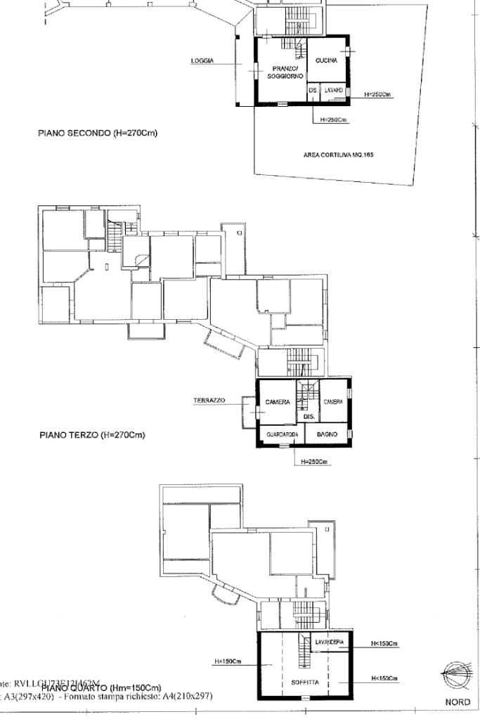
PAVULLO - In zona residenziale proponiamo in vendita una villetta di testa da terra a cielo su più livelli e con doppio ingresso, sia condominiale che una scala esterna di accesso al piano superiore che conduce al giardino di proprietà esclusiva.

L'immobile è così composto:

PIANO TERRA: con cortile di proprietà e garage doppio in lunghezza e il posto auto all' aperto di proprietà all interno del cancello;

PRIMO PIANO: con l'accesso principale dal vano scale condominiale troviamo la sala con camino e loggia, la cucina con accesso diretto sul giardino, antibagno e bagno;

SECONDO PIANO: una camera matrimoniale con balcone e cabina armadio, bagno con vasca idromassaggio e doccia, e un'altra camera 3/4.

TERZO PIANO: tetto con travi a vista con soffitta ad uso camera e studio più la lavanderia.

L'immobile è locato fino al 2027.

Per informazioni dirette chiamate oppure scriveteci anche Whatsapp al 3351529270.

Mostra tutto

Nelle vicinanze

Trasporto pubblico Trasporto pubblico
Vaglio
Vaglio
1,9 Km
Ricariche auto elettriche Ricariche auto elettriche
Duferco Ospedale Pavullo Nel Frignano
1,4 Km
Scuole Scuole
Scuole
1,8 Km
Scuola Primaria "Leonardo Da Vinci"
2,4 Km
Scuola d'Infanzia "Sant'Antonio"
2,4 Km
Farmacia Farmacia
Farmacia Beckmann
1,1 Km
Parafarmacia Conad
1,9 Km
Ospedali Ospedali
Ospedale di Pavullo
1,2 Km
Supermercati Supermercati
Conad
1,9 Km
Famila ipermercato
2,0 Km
CONAD
2,5 Km
Negozi Negozi
Forno Tazzioli
890 m
Ristoranti Ristoranti
Ristorante Antica Fagiola
830 m
Agriturismo Viecave
1,4 Km
La locanda di Pavullo
1,8 Km
Mirella
2,1 Km
Agriturismo Campiano
2,2 Km
Mostra tutto

Caratteristiche

Rif.:
61166333
Piano:
1 di 3 (Piano terra)
Box:
1
Balconi:
1
Terrazzi:
1
Camere da letto:
3
Mostra tutto
Prezzo Prezzo
€ 325.000
Rata mutuo Rata mutuo
€ 1.532 / mese
Proponi il tuo prezzoProponi il tuo prezzo

Classe Energetica

E
E
E
E
E
E
E
E
E
Anno di costruzione:
2007
Riscaldamento:
Autonomo
Tipo impianto:
A radiatori
Tipo alimentazione:
Metano

Prezzo ridotto di €1 (5%%)

Ti interessa visionare l'immobile?

Fissa un appuntamento  Fissa un appuntamento

Richiedi informazioni

Clicca su Leggi per aprire l'informativa
* Questi campi sono obbligatori

Calcola il tuo mutuo

Semplice e senza impegno
Anticipo

( % )
Mutuo

( % )

pochi semplici passi

inserisci i tuoi dati
Questionario completato
Grazie per aver richiesto un appuntamento senza impegno con un nostro Consulente del Credito e Assicurativo.

Hai inserito correttamente tutti i dati necessari e a breve riceverai una e-mail con un link da convalidare per inviare i tuoi dati.
Affiliato
Studio Pfp Srl
Largo Ghibellini, 16 41026 Pavullo Nel Frignano (MO)
Largo Ghibellini, 16 41026 Pavullo Nel Frignano (MO)
Zona: Pavullo nel Frignano e frazioni-Serramazzoni-San Dalmazio-Riccò
Mostra su mappa
Orari: dal Lunedì al Venerdì 9.00-13.00/15.00-20.00 Sabato 9.00-13.00
Affiliato
Studio Pfp Srl
Largo Ghibellini, 16 41026 Pavullo Nel Frignano (MO)

2026 Tecnocasa Franchising S.p.A. - P. IVA 08365160152 - Via Monte Bianco 60/A 20089 Rozzano (MI). Ogni agenzia ha un proprio titolare ed è autonoma. Privacy policy | Policy utilizzo | Cookie policy